Moradia T3 Para Venda

Moradia em Banda T3 - Castelo da Maia, Maia

Castêlo da Maia   Maia   Porto

ID ZMPT540118

Vendido

Todas as fotografias
Partilhar:
 Copiar link
Atributos
  • 2 Quartos
  • 1 Suite
  • 4 Assoalhadas
  • 3 WC's
  • 2 Lugares (garagem fechada)
  • 1 Lugar (parqueamento)
Quintal / Jardim
Terraço
Cozinha
Sala
Cozinha mobilada
Cozinha equipada
Boa exposição solar
Privacidade
Vista campo
Aquecimento central
Sistema de aquecimento
Estores elétricos
Porta blindada
Vídeo-porteiro
Roupeiro
Despensa
Arrecadação / Anexos
Hall de entrada
Churrasqueira / Barbecue
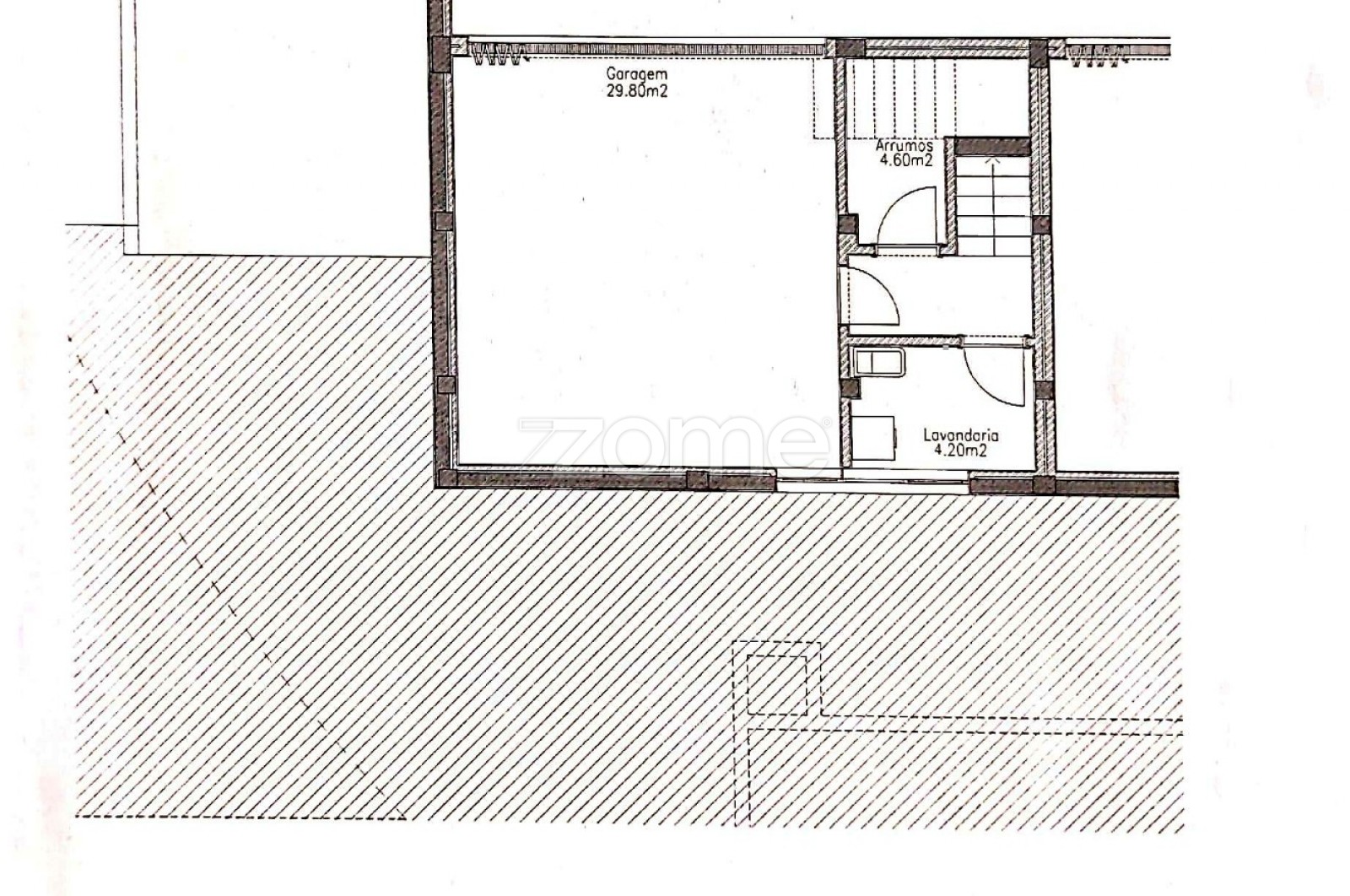
Lavandaria
Vidros duplos
Obras no imóvel: Poucas
  • CONDIÇÃO: Usado
  • ANO DE CONSTRUÇÃO: 2007
  • ACEITA PERMUTA: Sim
  • ÁREA ÚTIL: 166m2
  • ÁREA BRUTA: 210m2
  • ÁREA TERRENO: 64m2
Ver todas as áreas
  • WC's:
  • 10m2
  • 10m2
  • 4m2
  • Quintal / Jardim:
  • 45m2
  • Terraço:
  • 13m2
  • Cozinha:
  • 13m2
  • Sala:
  • 40m2
  • Garagem:
  • 30m2
Detalhes
Ao comprar esta moradia em banda T3 no Castelo da Maia, na Maia, estará a investir num imóvel com as seguintes características:

Moradia T3 localizada em ambiente calmo e recatado, ...
Ver mais
Localização
Abrir no google maps
Abrir vista de estrada
Entrar em contacto

ZOME Business

Centro Empresarial da Circunvalação - Estrada Interior da Circunvalação, nº 9543
4250-148 Porto

(Centro Empresarial da Circunvalação)

AMI 17432

Copyright Zome Portugal® 2019. Todos os direitos reservados.
Política de Privacidade Termos e condições Resolução Alternativa de Litígios
Ligar
Zome Go
Contactar Já!