Empreendimento
Empreendimento Villaresidence
Aveiro ›
Estarreja
›
Beduído e Veiros
Desde 295.000 €
ID EMPT194999


Imóveis

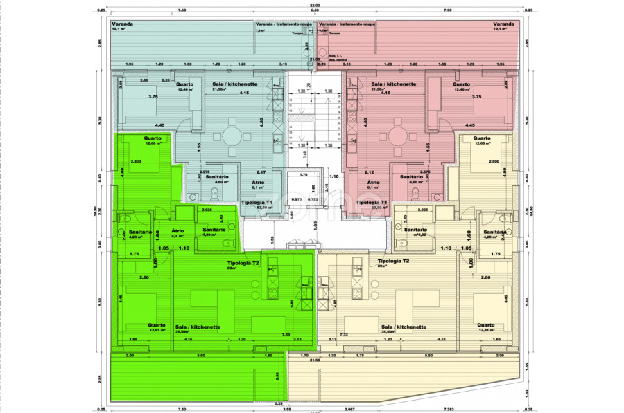
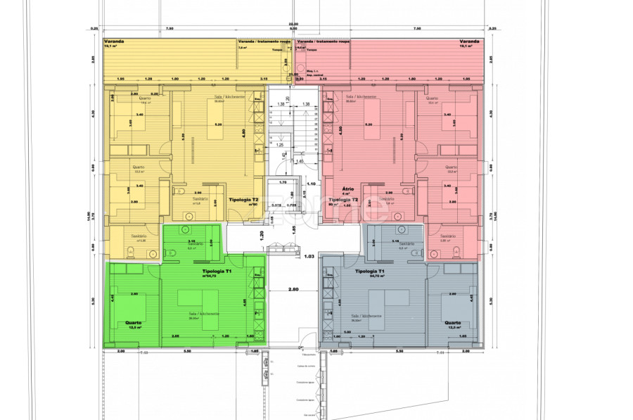
Apartamento T2 | Estarreja
Desde 295.000 €
1 imóvel disponível
Localização
Ver no Google Maps