Empreendimento
Edifício Mercadores
Porto ›
Porto
›
Cedofeita, Santo Ildefonso, Sé, Miragaia, São Nicolau e Vitória
Desde 215.000 €
ID EMPT194678


Imóveis

Loja
Desde 215.000 €
1 imóvel disponível

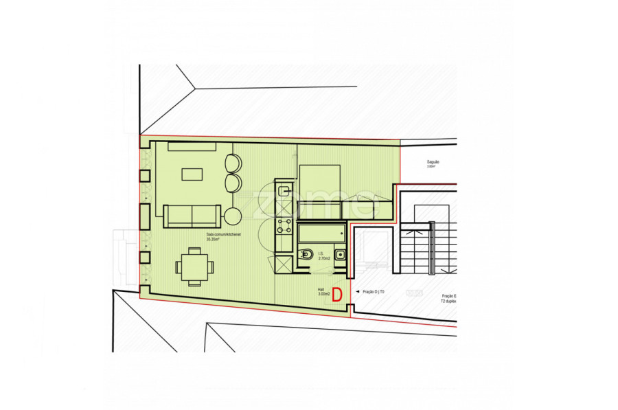
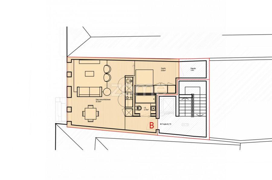
T0+1
Desde 358.000 €
4 imóveis disponíveis

T2+1
Desde 1.035.000 €
1 imóvel disponível
Localização
Ver no Google Maps