Apartment T0+1 For Sale

Apartment T0+1 with Mezzanine, in the Oporto city center

Cedofeita, Santo Ildefonso, Sé, Miragaia, São Nicolau e Vitória   Porto   Porto

ID ZMPT533130

225.000

All photos

Buy it now or make an offer to this property!

Zome Now
Zome Now - Pagamentos disponíveis
How it works
Need help?
Property brochure
Features
  • 1 Suite
  • 2 Rooms
  • 2 WC's
Furnished kitchen
Kitchen fully equipped and granite worktops
Attic
Good sun exposure
Close to the city centre
City view
Air conditioning
Video intercom
Entrance hall
Double-glazed windows
  • CONDITION: In construction
  • YEAR OF CONSTRUCTION: 2020
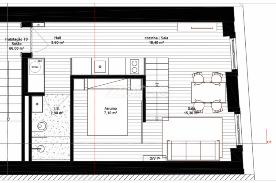
  • LIVING ÚTIL: 60m2
  • LIVING BRUTA: 60m2
View all areas
  • Suite:
  • 15.20m2
  • WC's:
  • 2.90m2
  • 3.50m2
  • Kitchen:
  • 18.40m2
Details
Apartment T0+1, located in a predominantly area.
 
It has privileged access to the Oporto downtown.

 

3 razões para comprar com a Zome 
...
View more
Location
Open in Google Maps
Open street view
Contact us

ZOME Business

Trav. Marechal Humberto Delgado, Ed. 38, Lj 26
4760-012 V. N. Famalicão

(Junto à Galp)

AMI 17432

Copyright Zome Portugal® 2019. All rights reserved.
Privacy policy Terms and conditions Alternative dispute resolution
Call
Contact Now!